定了!双雄联袂,佛山首批市级特色小镇又一项目曝光!
扫描到手机,新闻随时看
扫一扫,用手机看文章
更加方便分享给朋友
导语:乘粤港澳大湾区的东风,佛山产业迎来新格局,从“制造”迈向“智造”转型升级。佛山建投携手碧桂园进驻湾区要地——“广佛桥头堡”南海里水,发展智慧科技、生命健康朝阳产业,打造大湾区新一代全生态链智慧大城。
融入湾区发展,见证佛山力量
新征程的开启,亦是大机遇时代的来临。粤港澳大湾区人口达7000万,2018年GDP达1.5万亿美元。《粤港澳大湾区发展纲要》指出:佛山要做珠西制造业龙头,承担国家制造业创新中芯的重任。佛山南海区被单独提及,支持佛山南海推动粤港澳高端服务合作,搭建粤港澳市场互联、人才信息技术等经济要素互通的桥梁。

2018年,南海GDP达2809亿元,增长6.2%,地区综合实力连续五年位居全国中小城市百强区第2名。2019年《南海区政府工作报告》指出,南海将以“两高四新”产业为发展导向,推动高技术制造业、高品质服务业、新能源产业、新材料产业、新型生物医药产业、新一代电子信息产业发展,提速建设佛山南海电子信息产业园,为新一代电子信息产业发展提供优越成长空间。
从“制造中芯”到“智造中芯”的二次腾飞
佛山作为国家制造业转型升级综合改革试点,肩负着“中国制造2025”探索道路的重任。改革开放41年来,佛山从传统流水线作业到现代化作业,目前已形成规模工业总产值超过2.2万亿元的产业体系,成全国第六大工业城市。佛山逐渐从“制造”迈向“智造”转型升级。

(图片来源:南方新闻网)
碧桂园与城共生,产城融合的引领者
据悉,三年前碧桂园集团积极响应国家政策,开始探索“产城融合战略”实践之路,提出“为凤筑巢,陪伴成长”理念,积极推动特色小镇发展,与城市共荣共生。2017年碧桂园开始在佛山布局五个产业项目,碧桂园世纪滨江、顺德新能源汽车小镇、碧桂园双子星城、碧桂园广佛上城、机器人谷等项目。今年3月,佛山建投携手碧桂园进驻佛山“北大门”里水和顺,布局产融大城——广佛里智慧慢城,打造大湾区新一代全生态链智慧大城,助力南海产业腾飞。

(广佛里智慧慢城效果图)
广佛里智慧慢城,打造世界500强产融标杆
2017年佛山市政府全面启动创建全市首批15个市级特色小镇,争取到2020年建成30个以上市级特色小镇、8个以上省级特色小镇和5个以上国家重要级别特色小镇。

(图片来源:佛山市人民政府网)
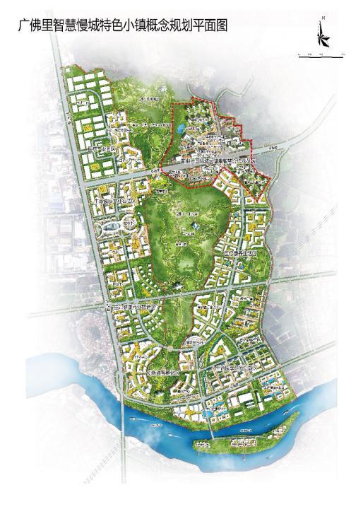
广佛里智慧慢城位于广州西部,与白云区一桥之隔的南海区里水,广佛同城的“桥头堡”。广佛里智慧慢城为佛山市首批市级特色小镇,以智慧科技、互联网+、生命健康为主导产业,总占地近3800亩,其中启动区占地480亩,建筑面积111万㎡,业态涵盖研发办公、独栋办公、创意空间、人才住房、集中商业等。目前已有两家世界500强企业已注册准备进驻,预估未来就业及居住人口达7万人,碧桂园筑巢引凤,以后将有更多的龙头企业进驻。
项目坐拥广东省实验中学南海分校、省一级和市一级中小学、品牌幼儿园,十二年菁英教育就在家门口。1.5公里即上佛山一环高速,快速接驳广州绕城高速、华南快速干线,沈海高速畅达大湾区主要城市。此外,区域规划里水有轨电车站点(拟2019年动工)及广州地铁8号线滘心站在建(计划2020年初试运营),立体交通纵横交错,筑就大湾区黄金区位!

(广佛里智慧慢城启动区效果图)
广佛里智慧慢城——焕发城市新生
地址:广东·佛山南海·里水幸福大道(山语湖旁)
文章来源于广佛里智慧慢城
声明:本文由入驻焦点开放平台的作者撰写,除焦点官方账号外,观点仅代表作者本人,不代表焦点立场。


