粤剧之乡新地标!佛山粤剧文化园设计方案出炉,2021年落成!
扫描到手机,新闻随时看
扫一扫,用手机看文章
更加方便分享给朋友
原标题:粤剧之乡新地标!佛山粤剧文化园设计方案出炉,2021年落成!
经堂古寺听粤剧
大榕树下赏水袖
……
较新消息!
佛山粤剧文化园
位于佛山经堂古寺文化保护区内
预计今年10月动工
2021年落成
将配置大剧场、小剧场、先锋剧场
还涵盖众多文化配套功能
↓↓↓
日前,由佛山粤剧传习所(佛山粤剧院)主导,北京市建筑设计研究院有限公司华南设计中心设计的佛山粤剧文化园设计方案出炉。

▲佛山粤剧文化园东南角鸟瞰效果图
预计动工时间:2019年10月
预计落成时间:2021年
项目规模:规划总用地面积为12592.01㎡,总建筑面积32077.19㎡,地上5层,地下2层。
项目位置:位于佛山经堂古寺文化保护区内,即禅城区卫国路东延线北侧、文华路西侧地块(原佛山市委党校内)。

▲区位图
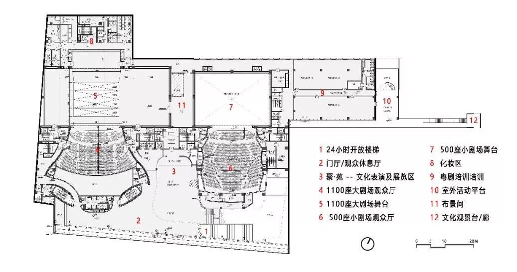
项目内容:包括1100个座位的大剧场、500个座位的小剧场、250个座位的先锋剧场,涵盖粤剧文化展览、培训、文化消费休闲等文化配套功能。将打造成为“一站式”和“体验式”的粤剧文化剧院综合体。
建筑亮点:与佛山本土文化巧妙融合,用抽象的手法,将粤剧印象在建筑中艺术再现。

▲总平面图


摄/珠江时报记者戚伟雄
现今粤剧的传承面临着很多的困难与挑战,如何平衡建筑设计中的文化传承与现代创新,提炼出粤剧的“魂”,赋予建筑现代的文化元素,是设计团队在佛山粤剧文化园建筑创作中的设计源点。

▲西南侧低点透视图

▲剧院中庭室内效果图

▲“聚苑”戏台
设计理念
位于场地东侧的经堂古寺历史悠久,它见证了佛山文脉以及岭南文化的传承和发展。
设计应尊重古寺原有风格和空间,如何建立起古建(经堂古寺)和新建(佛山粤剧院)的联系,让新旧融为一体,是规划设计的一个挑战。


▲经堂古寺文保建筑现状图
规划设计理念
◆
“大榕树下是人家”
◆
佛山粤剧文化园入口有一棵连理枝的苍天古榕,其冠如华盖,枝叶繁茂。这棵古榕给我们提供了规划设计的灵感,从而提炼出“榕根”的设计理念,延伸发展到整个场地。
景观肌理延续榕根蔓延的意境,从新建到古建,从新型材料到传统用材,从铺装设计到绿地设计,借鉴“榕根”的形式相互穿插咬合。行走其中,可以感受到历史的穿梭感,古建和新建从而得到自然地过渡。

▲东南侧低点透视图
规划设计理念
◆
新旧建筑文化空间的延续
◆
设计充分考虑到与经堂古寺的有机互动性,以明确的轴线关系组织场所空间关系。东起经堂古寺山门、浮屠殿、剧院入口广场、在主入口处将建筑一角轻轻“掀起”,首层通过局部架空形成骑楼内街,打通人行和视线的通廊,强调新与旧的联系以将建筑契入场地。

▲新旧建筑文化空间轴

▲多层次的立体交通游线
从剧场入口的广场开始,通过大台阶引导到二层大小剧场及剧场前厅;由下沉广场延伸至负一层文化商业、电影院线。自然而然的由户外延伸到室内,形成多层次的立体交通游线,强调了新旧建筑文化空间的延续。

▲强调了新旧建筑文化空间的延续
首层架空内街有效引导人流,形成具有岭南特色的骑楼灰空间,同时有效增加了首层临街面,提高商业价值,也由于首层架空及二层外挑的空间关系,巧妙地利用了规划条件。

▲建筑入口效果图

▲剧院中庭室内效果图
规划设计理念
◆
多剧场组合下的功能共享与流线组织
◆
在紧张的用地条件下进行1100座大剧场、500座小剧场、250座先锋剧场布局,组织复杂的剧院功能流线,是设计中的一大难题。

▲功能分析图
设计过程中通过多种布局的比较,最终选择大小剧场并置、错层布置布局。运用功能共享的概念,有效利用共享前厅,整合大小剧场的观众休息厅空间,设置集中共用的化妆间区域和布景卸货区域,便于两剧场的运营,节约空间和建设成本。

▲首层平面图

▲二层平面图
建筑设计理念
◆
水袖戏影、以古为心
◆
建筑整体造型从佛山粤剧的深厚文化底蕴出发,从飞舞曲转的水袖获取灵感,塑造建筑立面及屋面的曲线造型,整体温婉灵动;又将当地传统建筑南风古灶层层堆叠,体现佛山地域特色,高低错落的建筑形态应用到建筑上,形成富有层次的天际线。

▲建筑生成图
建筑设计理念
◆
建筑立意、帷幕拉开
◆
建筑主立面采用PTFE膜形成掀起纱幔般飘逸的立面效果,宛若舞台大幕徐徐拉开,犹如佛山的城市舞台,以开放的文化体验之姿向市民展现。

▲西南侧低点透视图
该立面设计从建筑节能出发,采用双层PTFE膜—玻璃幕墙形式,希望通过半透膜幕墙过滤南侧光,为中庭和剧院休息前厅带来柔和的光线,同时降低建筑能耗。又提取传统建筑飞檐高翘的斗拱形象,将“中国红”涂料喷涂的不锈钢椽子累叠成起翘檐角,把现代创新的建筑语言契入到外立面设计传统韵味当中。

▲双层PTFE膜—玻璃幕墙构造分析

▲双层PTFE膜—玻璃幕墙间设有休闲观景廊
建筑设计理念
◆
粤剧印象、红船水袖
◆
建筑内部空间设计灵感来自于粤剧红船、琼花会馆、祖庙万福台等粤剧文化符号,重塑人们脑海中的粤剧印象,大小剧场观众厅、中庭、前厅等主要空间的设计,以传统元素为灵感,通过现代的形式、手法与建筑材料再现于建筑之中。

▲剧院设计概念分析

▲1100座大剧场室内效果图

▲500座小剧场室内效果图
建筑设计理念
◆
文化传承、层峦戏影
◆
东侧立面临经堂古寺文化保留区,具有良好的观景面,但同时亦作为经堂古寺的背景墙,宜简单整体。所以该立面作镂空的整体山墙面设计,墙面开洞以抽象的岭南传统坡屋脊梁为图案,呼应并传承在新建筑之中。
设计采用灰白色陶砖通过参数化手段进行拼合,以不锈钢拉索连接吊挂形成砖幕墙。镂空陶砖的幕墙在阳光的映射下,与室内形成奇妙的光影效果,同时人们可通过镂空墙眺望经堂古寺及绿化广场景观。

▲参数化陶砖幕墙

▲吊挂陶砖幕墙内观景廊室内效果图

▲吊挂陶砖幕墙为室内带来的独特的光影效果
各位佛山市民
你是否和我一样期待呢?

采写 | 珠江时报记者陈颜梅
来源 | 佛山粤剧院
编辑 | 欣怡返回搜狐,查看更多
责任编辑:
声明:本文由入驻焦点开放平台的作者撰写,除焦点官方账号外,观点仅代表作者本人,不代表焦点立场。


