佛山【顺控华侨城云尚park】最新价格_户型_楼盘详情_售楼处电话‖佛山新房
扫描到手机,新闻随时看
扫一扫,用手机看文章
更加方便分享给朋友
佛山【顺控华侨城云尚park】在售均价多少?目前卖什么产品?这个楼盘怎么样?楼盘详情介绍;包含售楼处电话、一平多少钱、物业费、地址、学校、户型图、交楼时间、区位优势、交通、周边商业配套等楼盘详细资料——更详细楼盘资料和最新折扣价格,请拨打售楼处电话,销售会为您详细介绍。
佛山【顺控华侨城云尚park】售楼处电话:400-156-0036 转 382880(已认证)。
顺控华侨城云尚park,项目地址:佛山市顺德区锦荣路顺德第一中学西北侧约70米
大良东区核芯·地铁上盖·顺峰山旁建面约57-68-77-108㎡ 臻装一线景观公寓【项目信息概况】占地面积:约1.8万㎡建筑面积:约8.5万㎡总户数:708户总车位数量:704个户型:建面约57-68㎡精装Loft;78-108㎡精装二三房平层;项目地址:顺德·大良东区芯·顺德第一中学旁(地铁顺德一中站300米处)【核心腹地】大良东区“CLD”核心C位【华侨城板块】多维度顶级生态圈【南方智谷板块】接轨智谷产学研优势【便捷交通】三纵两横立体交通,双地铁上盖,畅达湾区【一江两园】坐拥顺峰山、桂畔海及滨河公园,咫尺自然生活【四大商圈】汇聚华润万象汇、大融城、印象城、欢乐海岸puls】大湾区最大的都市文化旅游综合体,持续虹吸大湾区各市人流【区位】大良东区 核“芯”腹地大良东区,传统富人区,顺德的繁华中心地带,坐拥城“芯”醇熟奢配,共享南方智谷、东区双板块优势,揽繁华及政策红利于一身。【交通】双地铁上盖 畅行大湾区约300米即达佛山地铁3号线顺德一中站(已开通运营),串联各轨道交通骨干线路,瞬达广佛核“芯”。【公园】一江两园 自然盛景经约500米绿道直达顺峰山公园,推窗即享IMAX桂畔海美景,下楼即享滨河公园,私藏繁华城“芯”臻稀自然资源。【商业】四大商圈 悦享繁华直线距离500米即达13万㎡华润万象汇,该商业体已于2023年2月10日正式动工,预计于2025年开业,将建设成为大良规模最大的TOD商业综合体。项目毗邻约9.8万㎡顺德大融城、约7.2万㎡印象城购物中心和欢乐海岸PLUS等商业综合体,一站式吃喝玩乐购举步即达。沿河景观带打造约2500㎡的滨水休闲商业街,未来可经营多业态商业,涵盖餐饮、零售、休闲、亲子教育、清吧等,悦享家楼下的繁华生活。【教育】全龄教育 书香氤氲3-18岁全龄教育环伺,省一级顺德第一中学仅一路之隔,书香涵养铺助力孩子成长。【医疗】三大医院 健康护航约1公里即达广东同江医院,更有大良妇幼保健院、南方医科大学顺德人民医院,为家人健康保驾护航。【园林】全龄园林 健康生活从全龄需求出发,打造超大运动主题园林,配设羽毛球场、篮球场、环景跑道等设施,阳光大草坪,全开阔空间满足休息、游戏及户外活动的功能,每一寸风景皆为健康生活而设。【墅质绝版景观视野】城市发展与自然至美共存逐水而居,是顺德人数百年来不变的情怀。拥有一套江畔物业,绝对是明智的选择。坐拥桂畔海及滨河公园绝美景色,远眺顺峰山公园,山、河、湖三景尽收眼底,顺德大良仅此云尚Park!




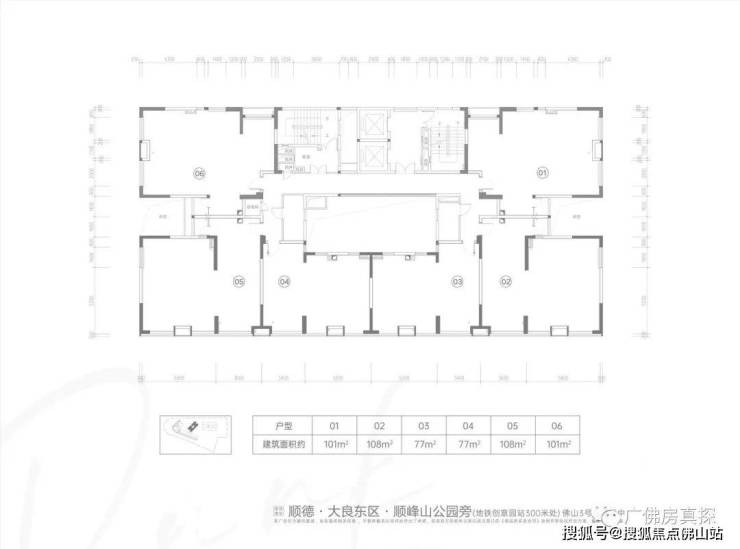
户型鉴赏#1、2栋建面约77-108㎡臻装2-3房平层❇平面图❇【约77㎡舒适两房 上车优选】南向三开间,通风采光俱佳入户玄关,超大收纳空间餐客厅一体连接阳台,彰显大气尺度L型厨房科学分区,转身之间完成烹饪
❇【约101㎡高实用三房 南北对流】东南超优朝向,阳光清风不请自来餐客厅一体连接阳台,居家待客皆从容阔绰三房设计,全家人各有所居双阳台设计,阳台带生活阳台❇【约108㎡奢阔三房 一步到位】南向四开间,演绎美好阳光生活百变空间格局,生活大有“享”法双阳台设计,不止双倍的享受生活阳台无遮挡,俯瞰东区繁华#3栋建面约57-68㎡loft精装公寓❇平面图❇【约57.4㎡双钥匙户型】❇【约57.39㎡LOFTB户型】❇【约68.46㎡LOFTA户型】
【顺控华侨城云尚park售楼部400免费咨询/预约电话400-156-0036 转 382880,中介勿扰】
温馨提示:过来营销中心参观样板间请记得提前拨打开发商售楼处400热线预约,预约看房价格更优惠,感谢您的配合!
声明:本文由入驻焦点开放平台的作者撰写,除焦点官方账号外,观点仅代表作者本人,不代表焦点立场。


